Login
/
Register
About
Investors
New business
Developments
Buying
Buying Guide for Private Sale
Buying a Shared Ownership Home
FAQS
Affordability Calculator
Aftercare
Why buy from Sempra Homes
Case Studies
Feedback form
News
Contact
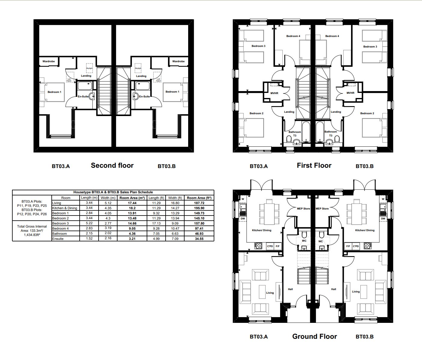
Chapelgate - Plot 11 - £575,000
4B7P
Tenure:
Private
Council Tax Band:
TBC
Return to price & availability
01268 284656
Email Chapelgate
Introduction
Unit Floor Plans
Availability & Price
Specification
Location
Gallery