| Room | Dimensions (m) | m² |
|---|
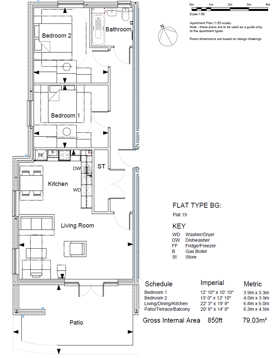
Floor plan scale is 1:50. The plans are to be used as a guide only to the apartment types. Room dimensions are based on design drawings.
Key:
WD - Washer/Dryer
DW - Dishwasher
FF - Fridge/Freezer
B - Gas Boiler
St - Store
| Room | Dimensions (m) | m² |
|---|
Floor plan scale is 1:50. The plans are to be used as a guide only to the apartment types. Room dimensions are based on design drawings.
Key:
WD - Washer/Dryer
DW - Dishwasher
FF - Fridge/Freezer
B - Gas Boiler
St - Store