Login
/
Register
About
Investors
New business
Developments
Buying
Buying Guide for Private Sale
Buying a Shared Ownership Home
FAQS
Affordability Calculator
Aftercare
Why buy from Sempra Homes
Case Studies
Feedback form
News
Contact
Tyefields (Private Sale) - Plot 22 - £425,000
3B5P
Tenure:
Private
Council Tax Band:
TBC
Return to price & availability
01268 207222
Email Tyefields (Private Sale)
Introduction
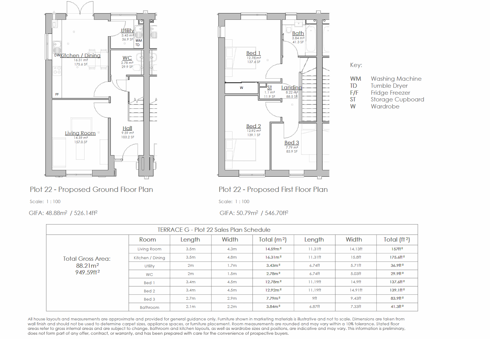
Unit Floor Plans
Availability & Price
Specification
Gallery