Login
/
Register
About
Investors
New business
Developments
Buying
Buying Guide for Private Sale
Buying a Shared Ownership Home
FAQS
Affordability Calculator
Aftercare
Why buy from Sempra Homes
Case Studies
Feedback form
News
Contact
Tyefields (Private Sale) - Unit Floor Plans
The Cornflower
2B4P
View dimensions
The Buttercup
2B4P
View dimensions
The Foxglove
2B4P
View dimensions
The Cowslip
2B4P
View dimensions
The Campion
2B4P
View dimensions
The Harebell
2B4P
View dimensions
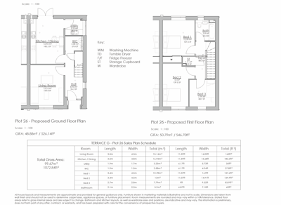
The Sorrel
3B5P
View dimensions
The Primrose
3B5P
View dimensions
The Marigold
3B5P
View dimensions
01268 207222
Email Tyefields (Private Sale)
Introduction
Unit Floor Plans
Availability & Price
Specification
Gallery