Login
/
Register
About
Investors
New business
Developments
Buying
Buying Guide for Private Sale
Buying a Shared Ownership Home
FAQS
Affordability Calculator
Aftercare
Why buy from Sempra Homes
Case Studies
Feedback form
News
Contact
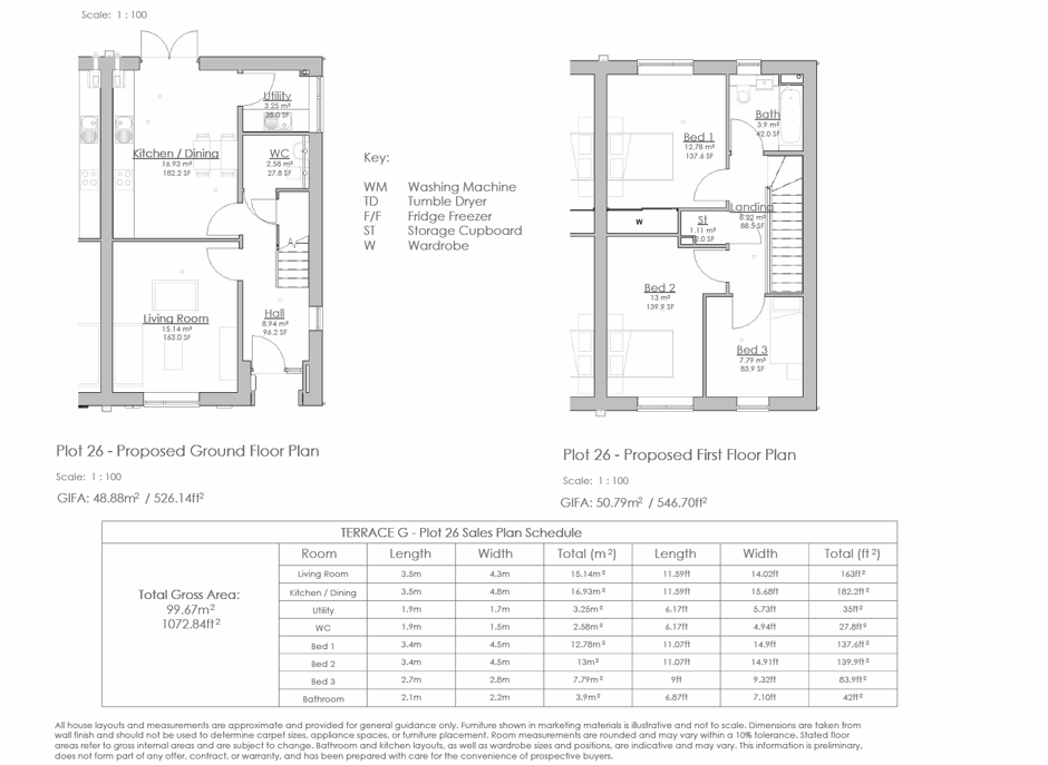
Tyefields (Private Sale) - The Marigold
3B5P
Room
Dimensions (m)
m²
Return to Unit Floor Plans
01268 207222
Email Tyefields (Private Sale)
Introduction
Unit Floor Plans
Availability & Price
Specification
Gallery